Die Seite Northlight Images weist auf ein Canon-Patent hin, mit dem der Kontrastautofokus beschleunigt werden soll und zeigt dazu ein animiertes Bild.
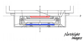
Hier ist zu sehen, dass ein Bauteil (blau) sich mehr oder weniger durchbiegt, was wohl durch Anlegen einer Spannung passiert, und dabei den Sensor (rot) entlang der optischen Achse verschiebt.
Damit kann der Sensor in die Schärfenebene gebracht werden. Die Verstellwege sind hier sehr kurz und entsprechend schnell kann die Fokussierung vonstattengehen. Ob das Objektiv dabei in der Unendlicheinstellung bleibt oder per Phasen-AF vorfokussiert wird und der bewegliche Sensor für die Feinabstimmung verwendet wird, geht aus der Beschreibung nicht hervor.
Canon betritt damit kein Neuland. Mitte der 1990er Jahre stand Yashica Kyocera vor der Aufgabe, Autofokus mit einem Contax SLR-Gehäuse möglich zu machen, ohne eine neue Objektivserie entwickeln zu müssen. Man entschied sich dafür, die Filmandruckplatte entlang der optischen Achse zu verschieben.
Im Gegensatz zum Canon-Patent wurde dann aber nicht nur die Andruckplatte (entsprechend dem Sensor bei Canon) bewegt, sondern die komplette Einheit aus Schwingspiegel und SLR-Sucher wurde auf Keramikschienen verschoben. Damit wurde mit allen MF-Objektiven von Carl Zeiss, mit denen die Contax-Modelle bestückt werden konnten, die automatische Scharfstellung möglich. Die Contax AX kam dann 1996 auf den Markt. (Quelle: Original-Pressemitteilung und Prospekt für die Contax AX | Archiv d-pixx)







